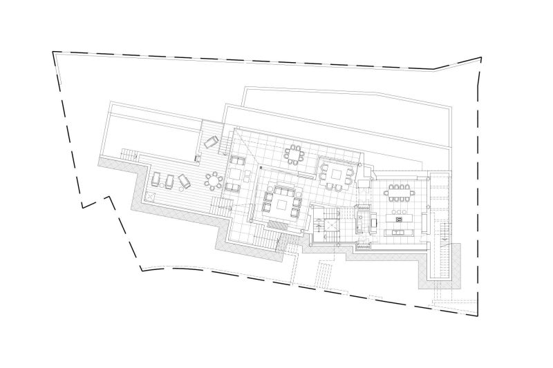
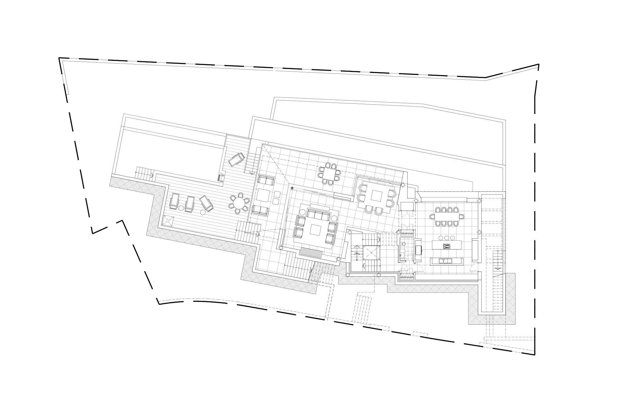
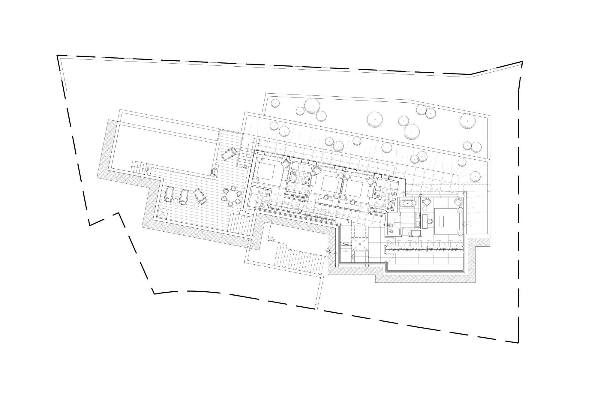
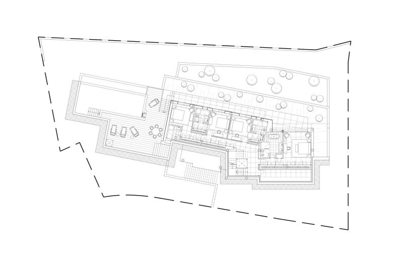
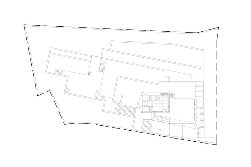
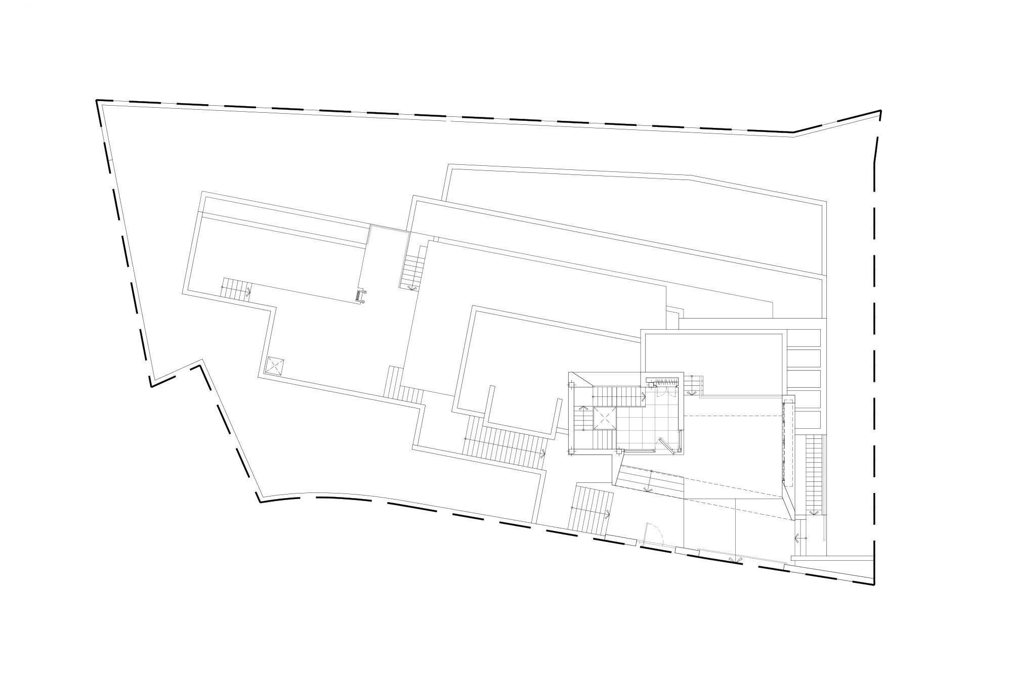
Bedrooms: 4
Bathrooms: 4+1
Plot: 1244 m2
Built: 344 m2
Pool: 65 m2
Terraces: 205 m2
Garage: 2 cars
Orientation: South
All rights reserved // 2022 // Produced by SPCA Marbella